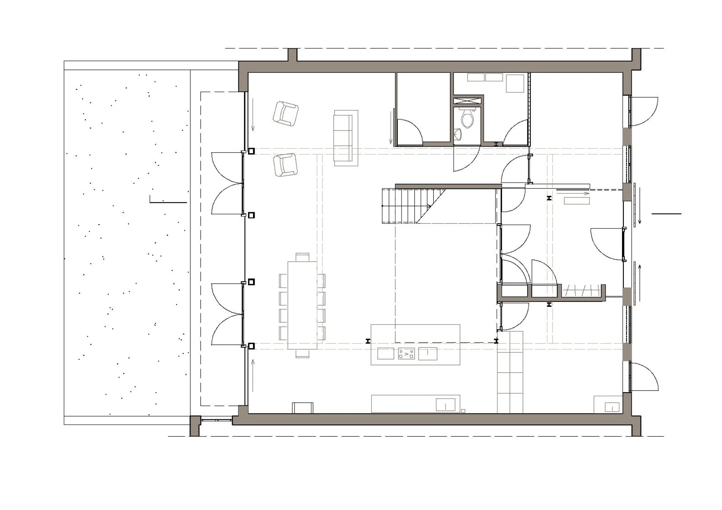
Verbouwing Bollenschuur, Heemstede

Naam project: Verbouwing Bollenschuur, Heemstede
Datum begin opdracht: 1999
Datum oplevering: 2001
Adres: Herenweg 21, Heemstede
Functie: Verbouwing woonhuis
Oppervlakte BVO: 300 m2
Bouwkosten: FL. 540.000,- excl. btw
Opdrachtgever: Gustav Weber, Willemijn Aris
Constructeur: Nico Plukkel Bouwkundig Adviesburo, Haarlem
Aannemer: Rolvink Bouw BV, IJmuiden
Architect: Bastiaan Jongerius
Medewerkers: Odette Olde Wolbers, Naomi Schiphorst, Michael Wagner

Previous
Previous

Verbouwing de Stolp, De Rijp 2005-2006