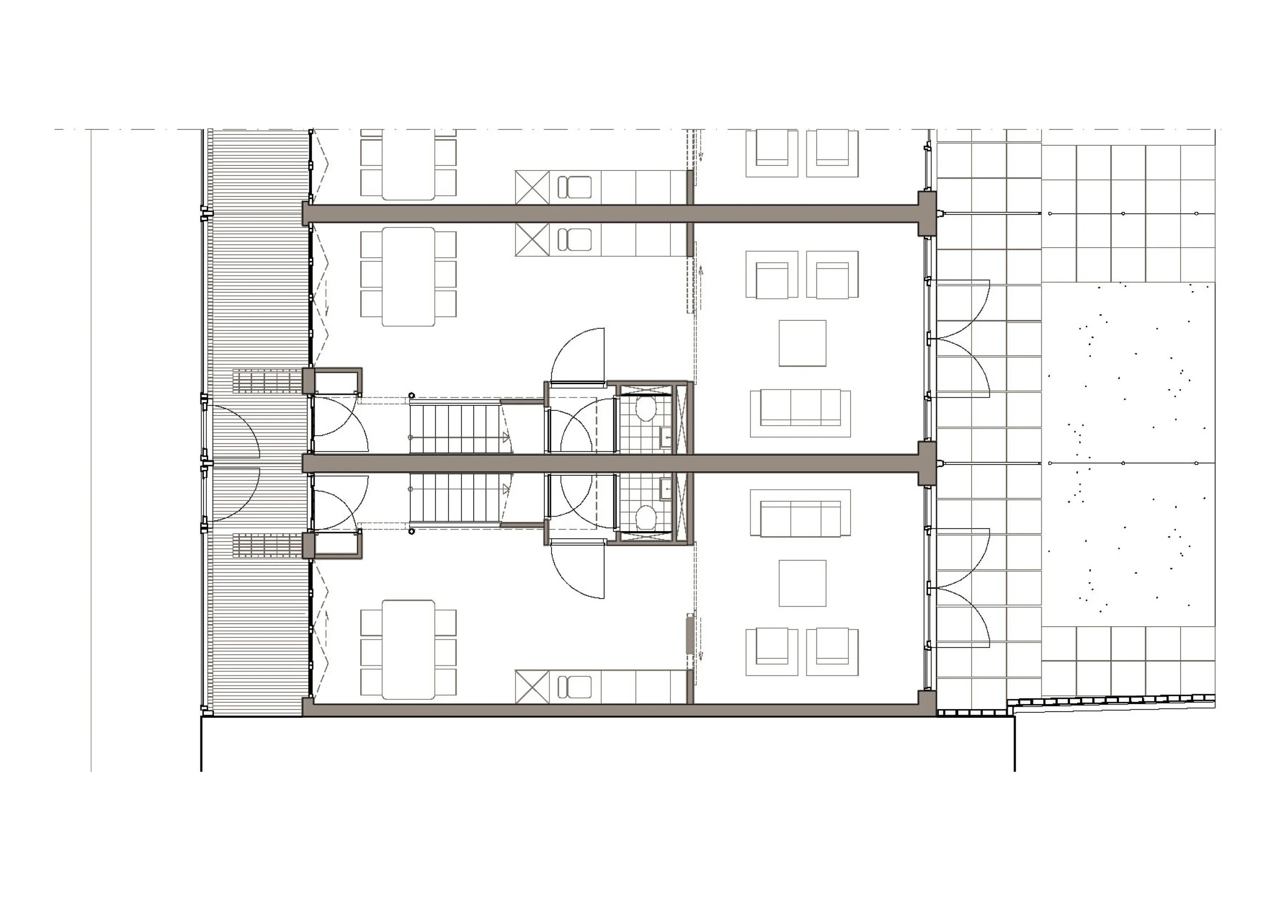
4 Woningen, Amsterdam

Naam project: 4 Woningen, Amsterdam
Datum begin opdracht: 2005
Datum oplevering: 2008
Adres: Wenslauerstraat 47–53, Amsterdam
Functie: Woningbouw, nieuwbouw
Oppervlakte BVO: 300 m²
Bouwkosten: EUR 500.000,- excl. btw
Opdrachtgever: Delta Forte Projectontwikkeling, Amsterdam
Constructeur: Constructieburo Tentij BV, Heemskerk
Aannemer: Bouw- en Aannemingsbedrijf Drent en Welling, Huizen
Architect: Bastiaan Jongerius
Medewerkers: Merel Martens, Santiago Baltar

Previous
Previous

Verbouwing Bollenschuur, Lisse 2007-2009

Next
Next

30 Seniorenwoningen, Edam 2002-2008